Hai la necessità di crescere ma non sai se la tua cantina è in grado di sostenere l’aumento produttivo?
Adeguamento ed efficientamento del lay out produttivo esistente per garantire l’aumento di produzione da 1,2 ML di bottiglie a 3,5 ML senza dover costruire una nuova cantina.
1. Analisi degli obbiettivi di crescita commerciali futuri e valutazione dell’attuale capacità produttiva della cantina
2. Analisi calendario ricevimento uve e protocolli lavorazione
3. Calcolo dei volumi ed affinamenti del prodotto sfuso e confezionato
4. Definizione e dimensionamento di tutte le attrezzature, macchine e impianti di processo
5. Definizione di tutte le aree e volumi per determinare la dimensione di ciascun reparto della cantina
6. Stima dettagliata degli investimenti e loro modulazione nel tempo
7. Riorganizzazione del flusso produttivo esistente per soddisfare le richieste di crescita commerciali
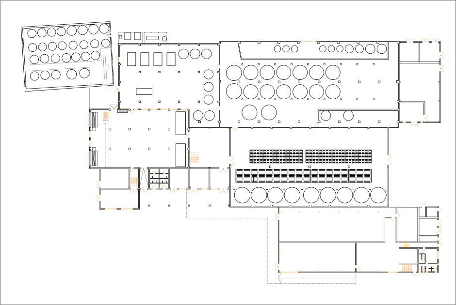
8. Planimetria finale del nuovo layout della cantina con la nuova riorganizzazione delle aree produttive

Planimetria prima dell’intervento di Rewinery

Planimetria dopo l’intervento di Rewinery
